Zum Hauptinhalt springen
Home
Unser Gasthof
Gaststube
Sonderbundstube
Pizzeria Valle Rossa
Weinkeller
Kinderspielzimmer
Historischer Hintergrund
Angebot
Veranstaltungen
Speise-/Weinkarte
Pizza Take Away
Menuvorschläge Bankett
Anlass Seminar
Gästezimmer
Geschenkgutschein
Über Uns
Team
Verwaltungsrat
Geschichte
Kontakt
Umbau
Unser Dorf. Unser Rössli.
Baupläne | Skizzen
Finanzbedarf
Statements
Aktie | Darlehen | Spenden
Objektspendeliste
Spendenbarometer
Geschichten, die das Rössli schrieb...
Tisch Reservation
Home
Unser Gasthof
Gaststube
Sonderbundstube
Pizzeria Valle Rossa
Weinkeller
Kinderspielzimmer
Historischer Hintergrund
Angebot
Veranstaltungen
Speise-/Weinkarte
Pizza Take Away
Menuvorschläge Bankett
Anlass Seminar
Gästezimmer
Geschenkgutschein
Über Uns
Team
Verwaltungsrat
Geschichte
Kontakt
Umbau
Unser Dorf. Unser Rössli.
Baupläne | Skizzen
Finanzbedarf
Statements
Aktie | Darlehen | Spenden
Objektspendeliste
Spendenbarometer
Geschichten, die das Rössli schrieb...
Tisch Reservation
Baupläne | Skizzen
Nordfassade
Pläne vergrössern
Südfassade
Pläne vergrössern
Westfassade
Pläne vergrössern
Ostfassade
Pläne vergrössern
Untergeschoss
Pläne vergrössern
Erdgeschoss
Pläne vergrössern
1. Obergeschoss
Pläne vergrössern
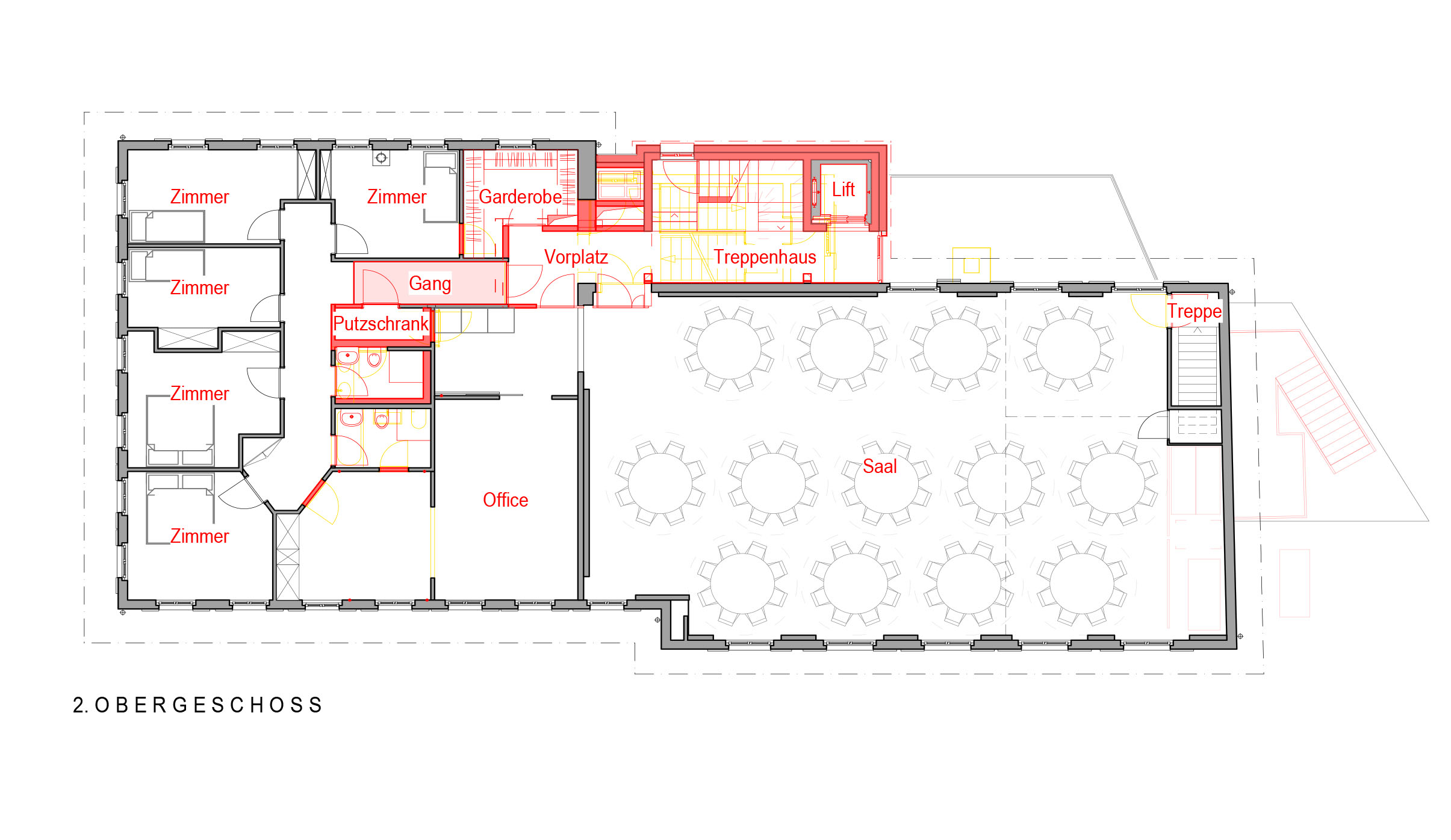
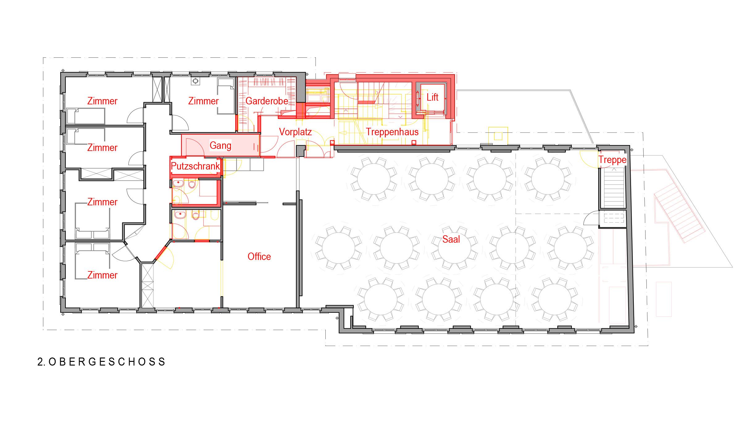
2. Obergeschoss
Pläne vergrössern
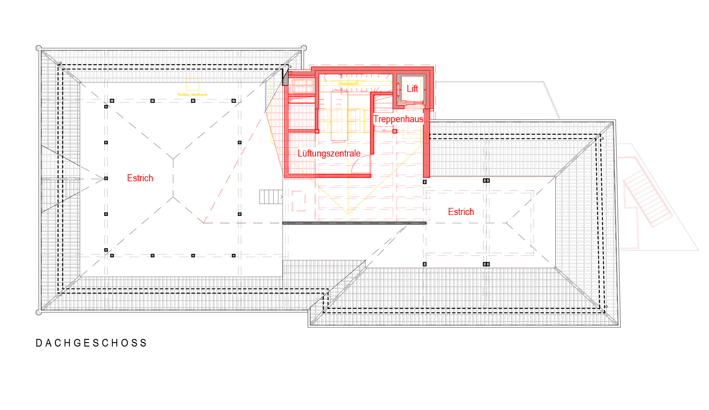
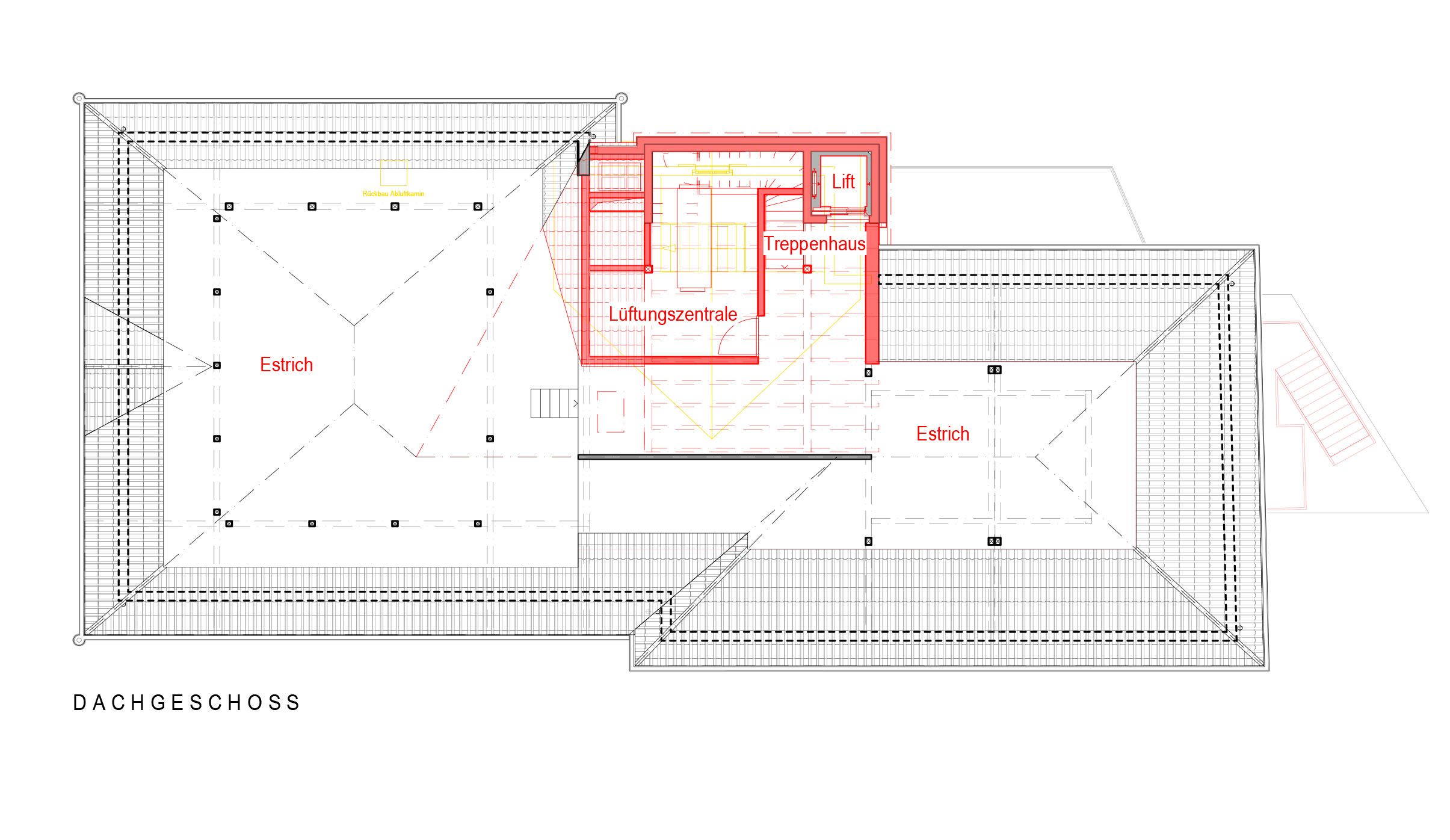
Dachgeschoss
Pläne vergrössern
Dachaufsicht
Pläne vergrössern